電話
13701085790
銷售公司
北京市海淀區大鐘寺13號華杰大廈7A9
生產工廠
河北省懷來縣東花園新興產業示范區工業緯一路南側,經三路東側
Nitrogen Generator
Large PSA
Nitrogen Generator
Cabinet PSA
Nitrogen Generator
Universal PSA
Nitrogen Generator
Container PSA
Nitrogen Generator
Explosion-Proof PSA
Nitrogen Generator
Stainless Steel PSA
Nitrogen Generator
PSA Nitrogen Generator
Control System
Supporting Equipment of
PSA Nitrogen Generator
Spare Parts for
PSA Nitrogen Generator
電話
13701085790
銷售公司
北京市海淀區大鐘寺13號華杰大廈7A9
生產工廠
河北省懷來縣東花園新興產業示范區工業緯一路南側,經三路東側
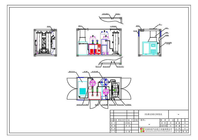
移動式集裝箱PSA制氮機適用于野外作業,滿足用戶技術需求,可就地觸摸屏操作,也可通過以太網在中控室操作。
內部有包括從空壓機至制氮機的整套設備,用戶只需提供外部電源即可。
還可提供符合歐盟標準的具有CE認證的移動式集裝箱PSA制氮機。
集裝箱內各部件布置合理,空壓機風冷氣體沿風道排出箱外、防爆風機強力通風,有效降低箱內溫度。內部設兩個
高亮照明燈,方便夜間作業。儲氣罐、冷干機、過濾器析出的液態水匯總到一根總排污管排出集裝箱外,避免箱內
地面產生污漬。箱外設氮氣出口、儀表氣出口、以太網接口和電源接口,方便外部連接。集裝箱在制氮機主機上方
設置可開關窗口,以方便分子篩更換。


